(408) 353-8800 • Cell: (408) 489-1262

john@jmicommercial.com

logo

Sunnyvale

prop1

Sunnyvale

prop2

Sunnyvale

prop3

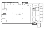
526 Almanor Avenue, Sunnyvale CA 94085

Picture Gallery / Floor Plan

Features

  • ±5,580 SF of office
  • ±1,340 SF of open lab space with AC
  • HVAC throughout
  • 2 grade level doors
  • 3.5/1,000 parking
  • 1,200 amps/3 phase distributed power
  • Close to numerous restaurants and hotels
  • Call to show - has lock box with combination

Asking Rate

$1.50 psf, Net (Net ± $.10)

Local Amenities

Numerous Restaurants & Hotels

Freeway Access to 101, 237, and 85

Good Public Transportation

Download a brochure for this property